For Sale

Paphos Tremithousa Building Plot For Sale TPH7145

403377

Property ID

€95,000

Description

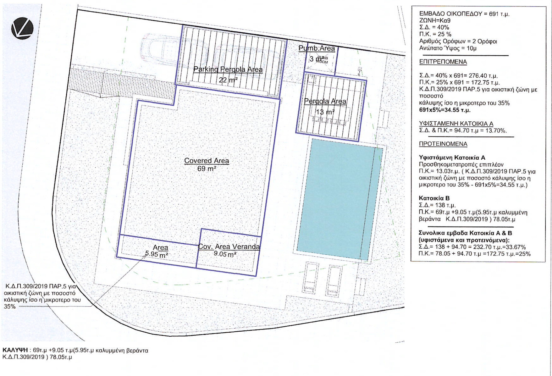
Residential Plot situated on a corner plot in a quiet residential area of Tremithousa, this land offers an excellent opportunity to build a 3-bedroom villa, with approved plans and permissions already in place—saving both time and initial planning costs.

The plot extends to 366m2 and falls within a Residential Zone, allowing for a well-designed home with outdoor living spaces, pool, and landscaped gardens.

PLANNING & BUILDING DETAILS
• Zone: Κα9 – Residential
• Build Density: 40%
• Coverage: 25%
• Max Height: 10m
• Max Floors: 2

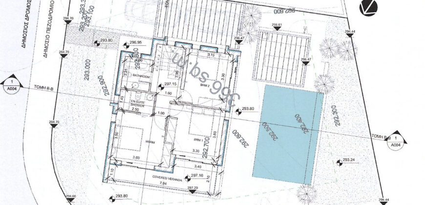
APPROVED VILLA SPECIFICATIONS
The approved plans are for a well-proportioned 3-bedroom villa, designed for comfortable modern living:
• Total Build Area: 138 sq.m
• Covered Internal Area: 84 sq.m
• Covered Veranda: 15 sq.m
• Entrance Covered Area: 2 sq.m

Additional features included in the design:
• Parking pergola
• BBQ pergola
• Pump room

EXTERNAL AREAS & LAYOUT
The outdoor space has been thoughtfully designed to maximise usability and lifestyle:
• Private swimming pool: 6.60m x 3.50m (overflow design)
• Pool patio: 32.35 sq.m
• Uncovered veranda/patio: 41.55 sq.m
• Parking patio: 41.52 sq.m
• Entrance patio: 7.46 sq.m
• Landscaped garden area: 109 sq.m

Ideal for outdoor entertaining, relaxation, and enjoying the Cyprus climate.

ADDITIONAL FEATURES
• Connected to electricity mains
• Corner plot
• Easy access to main roads
• Low communal fees: approx. €500/year
• Quiet residential location
• Excellent investment potential

TITLE DEEDS
• Title Deeds in owners name

LOCATION & AMENITIES
Tremithousa is a traditional yet well-developed village located just outside Paphos. It offers a blend of quiet residential living with easy access to the town centre, international schools, local shops, supermarkers, cafes. The area is ideal for both permanent residence and investment, with increasing demand due to its location and accessibility.

Near amenities

  • Property ID 403377
  • Price €95,000
  • Location Tremithousa, Paphos
  • Property Type Land Residential
  • Land area 366 m2

Map Location

Contact

* I understand that a representative will contact me regarding my inquiry.

Similar Properties

Tremithousa, Paphos PCP10342
655 m2

For Sale

€185,000