For Sale

Paphos Polemi Building Plot For Sale TPH5279

385092

Property ID

€344,300

Description

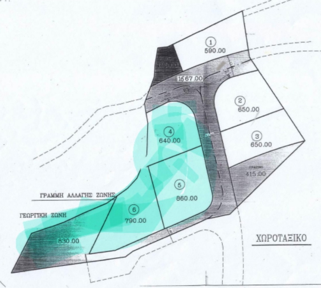
These 4 plots are located in “Agios Mamas” Polemi, Paphos. They can be sold together or separately and present an enticing prospect for prospective buyers:

Plot 3 – 650m² for €71,500
Plot 5 – 860m² for €94,600
Plot 6 – 790m² for €86,900
Plot 7 – 830m² for €91,300

The groundwork for subdivision is nearly complete, with only the final touches of road paving remaining. Notably, Plot 7 transition from agricultural to residential status underscores the evolving landscape and the potential for growth in the area.

With a Subdivision Permit secured for seven plots and nearly flat surfaces with oblong shapes, they offer an idyllic canvas for architectural creativity.

Each plot provides panoramic views of the surrounding landscape.

Plot 1, Plot 2 and Plot 4 , each spanning 590m² , 650m² and 640m² respectively, are retained from sale, perhaps reserved for future projects or considerations.

With planning zone H3, building ratio of 60%, coverage of 35% across two floors, and a height limit of 8.30 meters, there is ample scope.

• Type – Residential Plot

• Affected Area 100%

• Density: 60%

• Coverage 35%
• Parcel Area – 3,130m2

• 2 floors

• Height 8.3 Meters

• Planning Zone H3

Quiet area, Near bus route, Near amenities

  • Property ID 385092
  • Price €344,300
  • Location Polemi, Paphos
  • Property Type Land Residential
  • Land area 3130 m2

Map Location

Contact

* I understand that a representative will contact me regarding my inquiry.

Similar Properties